ref. n°QD071
PARIS 14ème | Jean Moulin | Porte d'Orléans
APPARTEMENT |
46.76 m2
312 000 € prix de vente HAI*
| 4% | | 300 000 €
* honoraires de l'agence inclus
descriptif
Je vous propose à la vente cet appartement, situé au 5ᵉ étage avec ascenseur d’un immeuble bien entretenu des années 70, rue Henri-Regnault, Paris 14ᵉ.
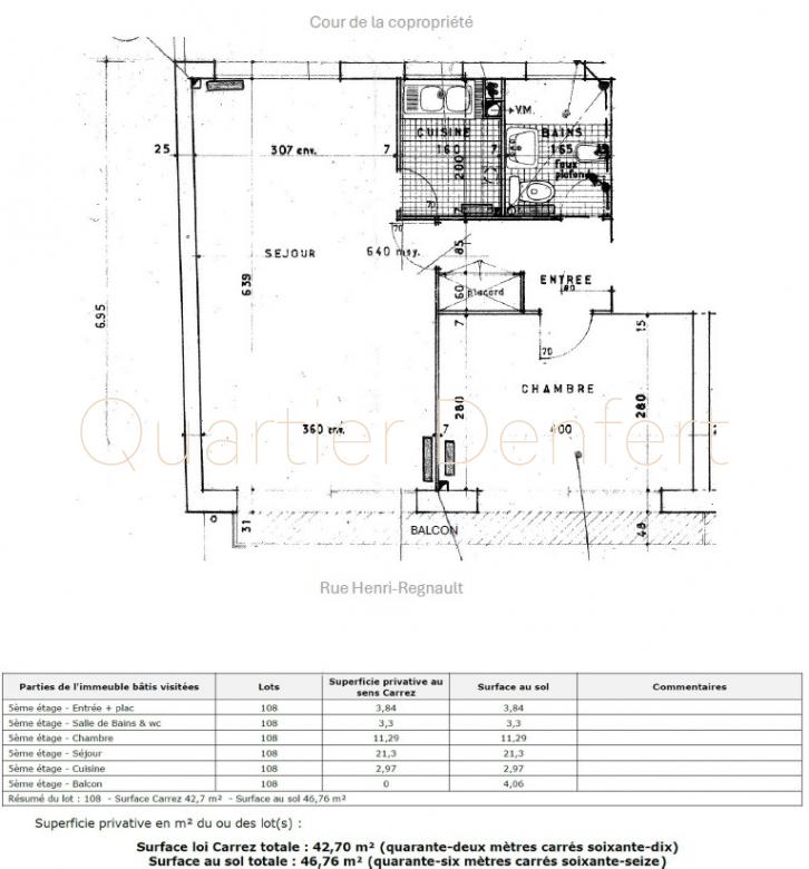
Vendu occupé par deux locataires âgés de 75 et 86 ans, il offre une double exposition et développe une surface de 46,76 m² au sol (42,70 m² loi Carrez). Il se compose d’une entrée avec placards, d’un séjour ouvrant sur un balcon filant de 4 m², d’une chambre, d’une cuisine indépendante et d’une salle de bains avec WC.
Une cave en sous-sol complète le bien.
Le chauffage est assuré par le réseau urbain CPCU.
L’appartement bénéficie d’un emplacement privilégié, dans une rue calme entre Alésia, Tombe-Issoire et le parc Montsouris, au cœur d’un quartier apprécié pour sa qualité de vie, ses commerces, ses écoles et ses excellentes connexions (métro Alésia, tramway T3a, accès rapide à Montparnasse).
Le logement nécessitera à moyen terme des travaux de rénovation, offrant l’occasion de repenser l’espace pour une meilleure optimisation.
Loyer actuel : 1 315 euros charges comprises.
Certaines images ont été retouchées pour préserver la vie privée des locataires en place.
informations techniques
diagnostics

